Home
List your patent
My account
Help
Support us
Panel dolly apparatus
[Category : - Construction Processes & Equipment]
[Viewed 368 times]
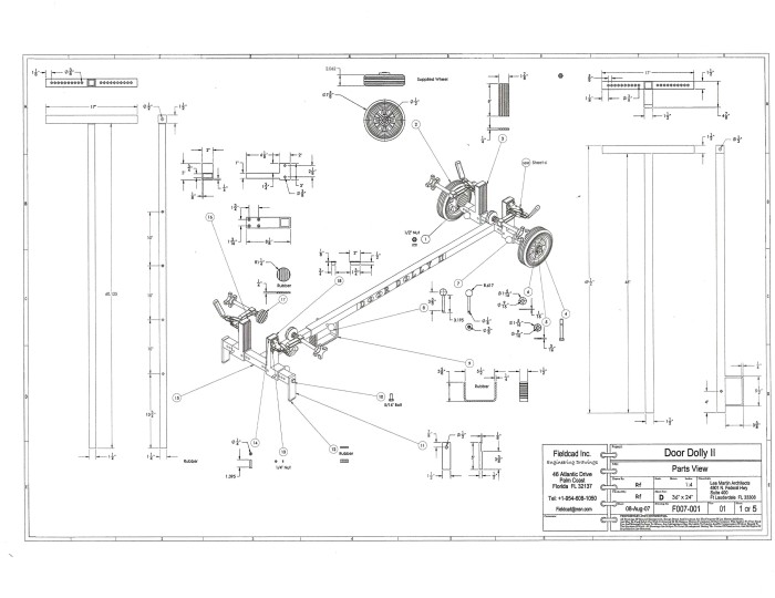
A door and panel dolly apparatus has a frame having a telescoping center frame member with a perpendicular wheel frame member on one end and a perpendicular panel support frame member on the other end. Both the wheeled frame member and the floor support frame member have a pair of generally perpendicular panel support post extending therefrom and a swinging door clamp attached thereto. Each swinging panel clamp is positioned to swing from an open position to a closed clamping position for clamping a panel between two clamps or against a perpendicular clamp post. The pair of swinging panel clamps are each attached to a clamp post and have a rod with a clamping surface on one end thereof for threadedly adjusting each of the swinging clamps to clamp a panel of different widths. Each swinging panel clamp is a toggling clamp mechanism.
A unique, one-of-a kind door hanging tool “The Door Dolly”. A tool that will make door hanging for a single person easy. It will hold a door horizontally. while hinges can be mortised and installed. Then the Door slab can be rolled over to the door jam, top pins can be dropped into place, release the lower clamp and the door swings into place and bottom pins can be dropped into place. The tool will also collapse to 1/2 the size for easy storage when not in use.
About the Inventor and Owner of the Patent:
I am a Florida State General Contractor with over 40 years’ experience. While remodeling the Miami International Airport Hotel, my company’s part of the contract was to hang over 1400/3070 solid core fire doors at 147 lbs. each. I had to have two carpenters to hang these heavy doors. I made a door holder out of wood to hold the door while hinges were mortised and installed. One of my carpenters said if this door holder had wheels so we could roll it into place. (Necessity is the mother of invention). With a lot of trial and error, The Door Dolly was invented.
I was able to make and manufacture the tool. Without advertising, I made and shipped the Door Dolly all over the USA.
I attended the Orlando Florida Builders Show. A Chinese gentleman came over to see the Door Dolly at my exhibit. Later another Chinese man came back and said Mr. Kmatsu would like to see me at his exhibit. I met with Mr. Kmatsu, who had a very large door manufacturing company in China, and he told me out of all the tools in the show he liked the Door Dolly the best. He went on to say that “There are buildings all over the world and all of these building have doors, but there is only one Door Dolly.”
Other Uses:
• The Door Dolly allows you to conveniently roll a door into an elevator in high rise buildings for maintenance or repainting.
• Sold many units to the Dade County School Board so they could move slate chalkboards into classrooms.
• I can move 2 sheets of 5/8 inch drywall/plywood a long distance by myself
.• Clamps can hold up to 1500 lbs.
After the Orlando Florida Builders Show and my very small website, the Door Dolly was selling to individuals very nicely. Then tool companies began contacting me for sales. Companies such as Grainger, Norfield, Southern Lock and Supply, Casters and White Cap. Review articles were published by the Journal of Light Construction and Bob Vila “On the Level”.
Conclusion:
I sold over 1,000 units but I was overwhelmed and the ability to produce enough Door Dollys to meet the demand caused me to give it up.
Now I believe that someone would be interested in taking over production and marketing it in a way I could not.
Last:
The Door Dolly incudes plans, patent/trademark/test results, three (3) Door Dolly tools in shipping boxes for reproduction.
Asking price:
Above 1 million USD





[ Home
| List a patent
| Manage your account
| F.A.Q.|Terms of use
| Contact us]
Copyright PatentAuction.com 2004-2017
Page created at 2025-12-18 9:27:56, Patent Auction Time.